PROJET À BRUXELLES

ITUH

City Center

Bd du Jardin Botanique 20, 1000 Bruxelles

11.000m²

Mission :

  • WPS (Workplace strategy & Needs Analysis) 
  • User survey 
  • Interviews
  • Design & Build (conception et réalisation)
  • MEP coordination (Mechanical, electrical & plumbing , incl HVAC)

A Landmark for Labor Movements

Did you know ?

L’International Trade Union House héberge des organisations européennes et internationales de premier plan, dont la CSI, la CES, l’ETUI, ainsi que d’autres fédérations et un espace de coworking.

Siège de la plus grande fédération syndicale mondiale, cette organisation joue un rôle central dans la promotion des droits des travailleurs, de normes de travail équitables et de la justice sociale à l’échelle internationale.

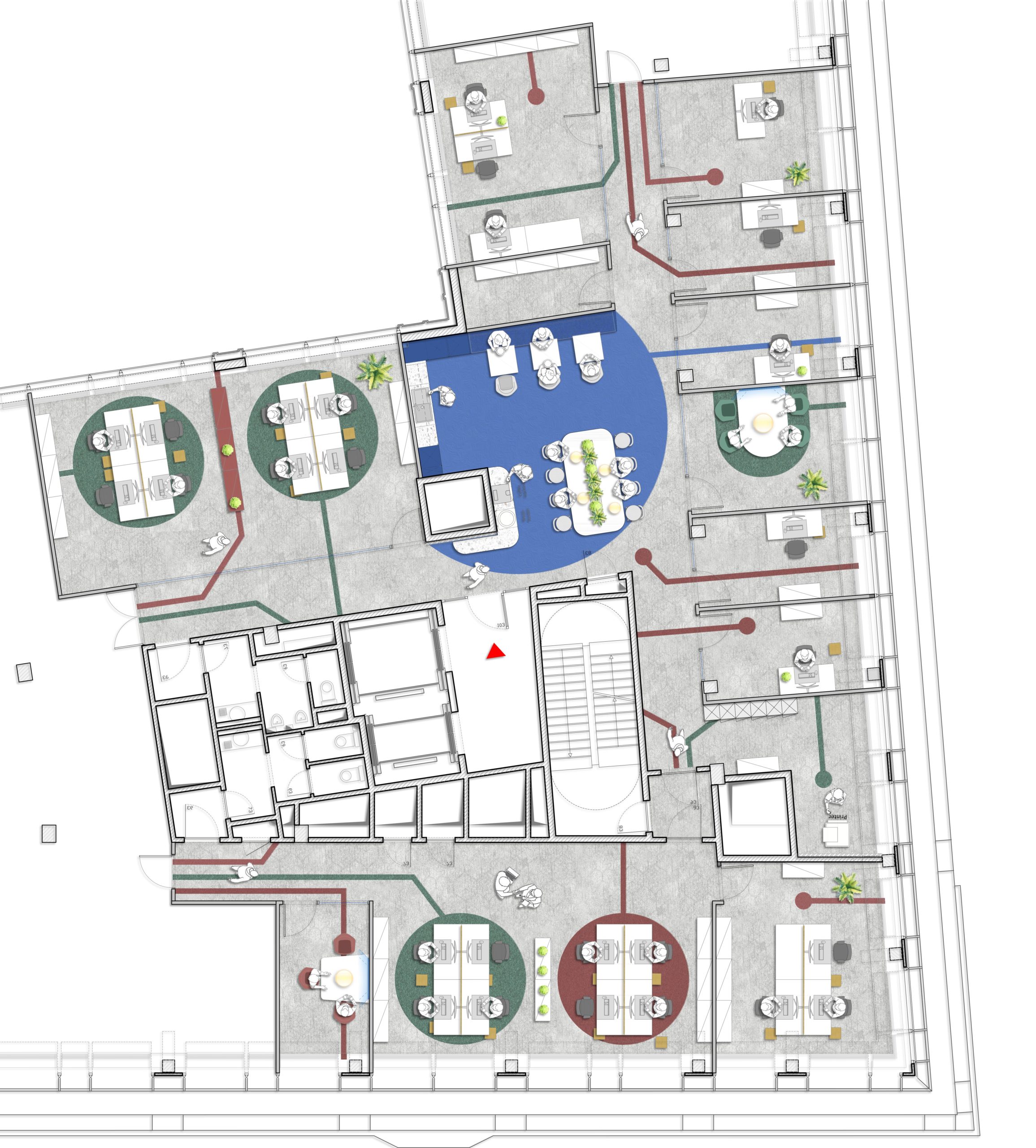
11.000 of Transformation

SMILE s’est vu confier la refonte intégrale de l’ITUH : 11 000 m² répartis entre différents occupants, chacun avec sa propre identité et sa culture.

De la définition de la stratégie de travail et l’analyse des besoins au Design & Build clé en main, SMILE a transformé cet environnement complexe en un centre harmonieux et pluriel.

Shared Values, Distinct Identities

Unir les cultures, donner force aux voix du monde entier

Le projet conjugue unité et diversité : des espaces partagés encouragent la collaboration interorganisationnelle, tandis que des zones dédiées traduisent la culture de chaque entité.

Grâce à une coordination MEP intégrée et à l’accent mis sur le bien-être, l’ITUH reflète désormais à la fois l’envergure des mouvements syndicaux internationaux et les besoins quotidiens de leurs équipes.